Services Provided
At Mountain Mosaic we provide seamless design, installation, and maintenance services to create beautiful, multi-functional regenerative landscapes. From concept to care, we ensure every step is effortless, crafting sustainable spaces that thrive and inspire.
Design


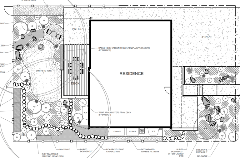
Behind every exceptional landscape is a thoughtful design process rooted in regenerative principles. Our designers carefully consider soil health, water conservation, and native plant integration to create sustainable ecosystems. Using CAD software, we provide clear visuals, ensuring you’re confident in your new, thriving outdoor space before installation begins.




Build
Our talented team ensures every regenerative landscape is installed with precision and care. We focus on soil preparation, water conservation systems, and native plant integration to create thriving, low-maintenance ecosystems. By using sustainable techniques, we curate your landscape to harmonize with Colorado's natural environment and allow it to flourish for years to come.
While regenerative landscapes are low maintenance, there is seasonal cleanup, preparation, and harvests! There are always opportunities to learn about your yard. At Mountain Mosaic we want to teach you how to care for your new outdoor haven, but we are happy to assist with the periodic maintenance if you want a sustainable landscape but are less interested in getting your hands dirty.
Maintenance + Education
Contact
Interested? Please reach out!
Steve@MountainMosaicDesign.com
© 2025. All rights reserved.


